TEMA DE PROIECTARE
În cadrul temei de an 4, mixitate spațial-funcțională, proiectul de atelier a constat în crearea unui spațiu destinat persoanelor în vârstă în imediata vecinătate a Mănăstirii Plumbuita din București. Adresându-se nevoilor specifice ale bătrânilor, proiectul integrează, pe lângă spațiile destinate locuirii propriu-zise, diverse funcțiuni cu caracter social-cultural, pentru îngrijirea sănătății și spații care să faciliteze interacțiunea între generații.
DESPRE PROIECT
Denumire: Complex rezidențial pentru vârsta a 3-a și a 4-a
Autor: stud.arh. Cîrstea Elena Monica
Atelier 48, An universitar 2018-2019
Amplasament: Parcul Plumbuita, București
La baza proiectului stau 3 aspecte specifice amplasamentului dat:
• Situarea în imediata vecinătate a Mănăstirii Plumbuita, monument istoric de importanță națională;
• Amplasarea într-o zonă verde extinsă, Parcul Plumbuita, la marginea zonei de locuințe individuale;
• Panta naturală a terenului alocat construcției și situarea acestuia pe malul lacului.
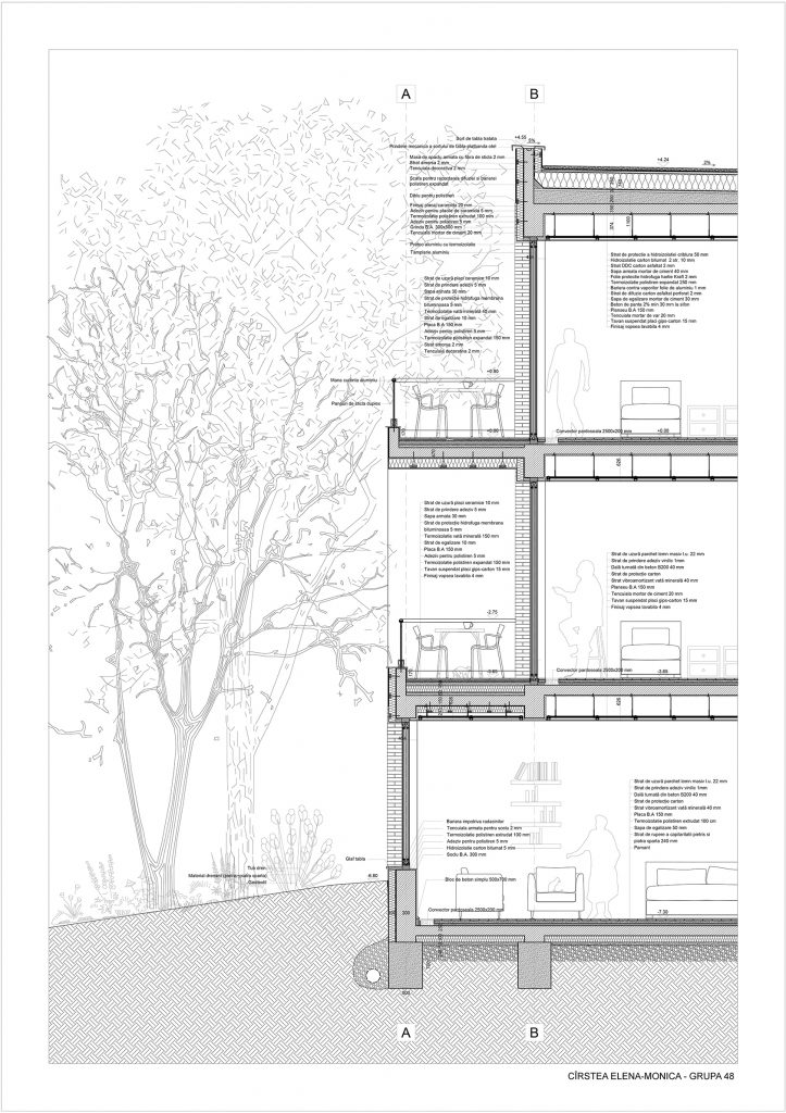
Astfel, proiectul se structurează sub forma unei incinte închise, având o amplă curte interioară delimitată de construcții cu regim de înălțime de până la D+P+1, fiind un răspuns adaptat la forma de organizare în plan a mănăstirii, dar și la necesitatea de a crea o curte cu un caracter privat, delimitată de zona verde, publică, a parcului. Volumetria terasată valorifică panta naturală a terenului. Orientarea zonei de locuire se face către priveliștea cea mai favorabilă (lacul Plumbuita, orientare nord-vest), in timp ce zonele comune de zi sunt orientate majoritar către sud si est. Capacitatea de cazare a complexului este de 153 de locuri, din care 108 pentru locuire permanentă și 45 pentru locuire temporară (internare).
Din punct de vedere funcțional, ansamblul cuprinde 2 zone de cazare cu specific diferit (locuire permanentă și locuire temporară tip spital), cabinete medicale, sală pentru fizioterapie, mici spații comerciale, ateliere, bibliotecă și sală de evenimente și spații servante aferente. Pe lângă acestea, in incintă este amplasată o grădiniță, răspunzând astfel lipsei unei astfel de funcțiuni în imediata vecinătate și creând astfel un cadru favorabil întâlnirii diverselor generații.











